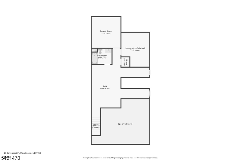
23 Davenport Pl

Morris Twp, NJ 07960


 

Price: $725,000

GSMLS:  4018164
Type: Condo/Townhouse/Co-op
Style: Townhouse-End Unit
Beds: 2
Baths: 3 Full
Garage: 1-Car
Year Built: 1993
Acres: 0.03
Property Tax: $8,336
Description
Modern Comfort & Timeless Style - Beautifully updated and impeccably maintained turnkey end unit in The Moore Estate, surrounded by lawns and trees. Open living & dining areas feature soaring cathedral ceilings, a cozy gas fireplace, and upgraded wide plank wood floors. Abundant natural light fills the space through expansive windows, and a private Trex deck (2023) and covered balcony facilitate easy indoor/outdoor living. The eat-in kitchen boasts granite countertops, glass tile backsplashes, upgraded floors, stainless steel appliances, and a breakfast nook. Both bedrooms, laundry conveniently on this main level. The primary suite offers luxuriously updated en-suite bath with a frameless glass shower. 3rd floor offers two flexible spaces: a windowed loft with a full bathroom and a spacious skylit bonus room, perfect for a 3rd BR or home office. Upgraded carpeting in the bedrooms, loft, bonus room, stairs. All bathrooms feature new vanities, ceramic tile floors, and Delta fixtures. Ample storage, including a large storage room and custom shelving in the bonus room, garage. Ground level foyer and direct access from the 1-car garage w/driveway parking. Enviable amenities: clubhouse with kitchen, fitness center, tennis courts, and outdoor pool. This area offers serene suburban charm with city conveniences, 2 train stations w/direct NYC service, mins. to major highways, and vibrant downtowns (Morristown, Madison, Chatham) with exciting dining, shopping, and cultural experiences.
Rooms Sizes
Kitchen:
17x11 Second
Dining Room:
12x12 Second
Living Room:
24x15 Second
Family Room:
n/a
Den:
11x12 Third
Bedroom 1:
22x13 Second
Bedroom 2:
11x11 Second
Bedroom 3:
n/a
Bedroom 4:
n/a
Room Levels
Basement:
n/a
Ground:
Foyer,GarEnter
Level 1:
n/a
Level 2:
Bath Main, Bath(s) Other, Breakfast Room, Dining Room, Kitchen, Laundry Room, Living Room
Level 3:
Bath(s) Other, Den, Loft, Storage Room
Level Other:
n/a
Room Features
Kitchen:
Eat-In Kitchen
Dining Room:
Dining L
Master Bedroom:
Full Bath, Walk-In Closet
Bath:
Stall Shower
Interior Features
Square Foot:
n/a
Year Renovated:
n/a
Basement:
No
Full Baths:
3
Half Baths:
0
Appliances:
Carbon Monoxide Detector, Dishwasher, Dryer, Microwave Oven, Range/Oven-Gas, Refrigerator, Washer
Flooring:
Carpeting, Tile, Wood
Fireplaces:
1
Fireplace:
Gas Fireplace, Living Room
Interior:
Blinds,CODetect,CeilCath,FireExtg,Skylight,SmokeDet,StallShw,TubShowr,WlkInCls
Exterior Features
Garage Space:
1-Car
Garage:
Built-In Garage, Garage Door Opener
Driveway:
1 Car Width, Additional Parking, Blacktop
Roof:
Asphalt Shingle
Exterior:
Brick, Composition Siding
Swimming Pool:
Yes
Pool:
Association Pool
Utilities
Heating System:
1 Unit, Forced Hot Air
Heating Source:
Gas-Natural
Cooling:
1 Unit, Ceiling Fan, Central Air
Water Heater:
Gas
Water:
Public Water
Sewer:
Public Sewer
Services:
Cable TV Available, Fiber Optic Available, Garbage Included
Lot Features
Acres:
0.03
Lot Dimensions:
n/a
Lot Features:
Level Lot, Open Lot
School Information
Elementary:
n/a
Middle:
Frelinghuysen Middle School (6-8)
High School:
Morristown High School (9-12)
Community Information
County:
Morris
Town:
Morris Twp.
Neighborhood:
The Moore Estate
Application Fee:
n/a
Association Fee:
$652 - Monthly
Fee Includes:
Maintenance-Common Area, Maintenance-Exterior, Snow Removal, Trash Collection
Amenities:
Club House, Exercise Room, Kitchen Facilities, Pool-Outdoor, Tennis Courts
Pets:
Yes
Financial Considerations
List Price:
$725,000
Tax Amount:
$8,336
Land Assessment:
$200,000
Build. Assessment:
$216,400
Total Assessment:
$416,400
Tax Rate:
1.97
Tax Year:
2025
Ownership Type:
Condominium
Listing Information
MLS ID:
4018164
List Date:
04-02-2026
Days On Market:
0
Listing Broker:
CHRISTIE'S INT. REAL ESTATE GROUP
Listing Agent:
Smitha Ramchandani
 

Request More Information

Shawn and Diane Fox
RE/MAX American Dream
3108 Route 10 West
Denville, NJ 07834
Call: (973) 277-7853
Web: WillowWalkCondos.com


RE/MAX

Town & Valley II

211 Route 10 East
Succasunna, NJ 07876
Office: (973) 598-1008


Shawn and Diane Fox